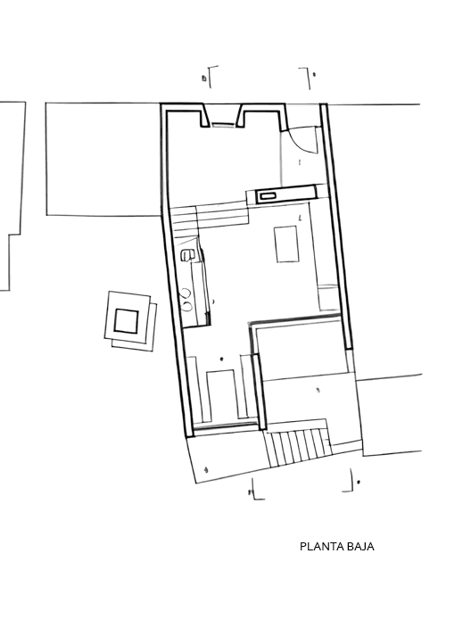
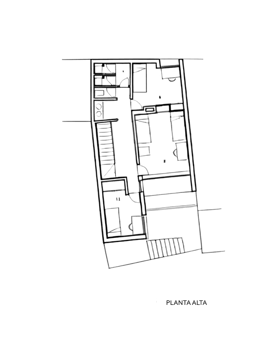
Albergue Municipal

Proyecto para un Albergue Municipal

en la localidad de Arjona (Jaen)
En colaboracióbn con Francisco Cortes

Detalles

Un Albergue regentado por el municipio situado al pié de las murallas de la ciudad, con amplias vistas a los campos de olivos circundantes.

El proyecto se inspira en la arquitectura popular Mediterranea y las tipologias residenciales del lugar para mimetizar el edificio en su entorno al tiempo que practica un ejercicio de discreta abstracción formal

Especificaciones

Area del lugar

80 m2

Fecha

1997

Estado

Anteproyecto

Herramientas

Autocad, Photoshop,
Blender 3D, AI

Arquitectos

Pedro Lara, Francisco Cortés