Centro de Acogida de Autobuses

Proyecto Fin de Carrera

El enunciado del PFC contemplaba la creación de un Complejo de Acogida de los Autobuses turísticos al objeto de evitar su aglomeración en lugares no deseados de la ciudad, ofreciendo también a sus trabajadores un adecuado descanso.

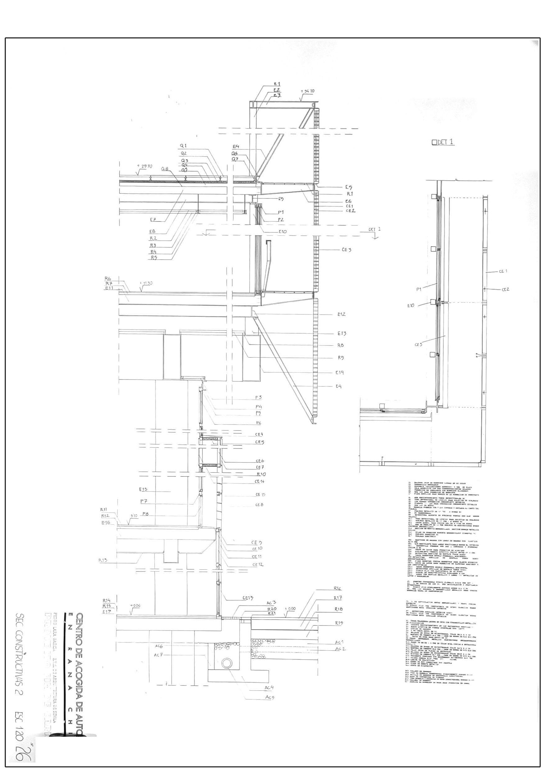
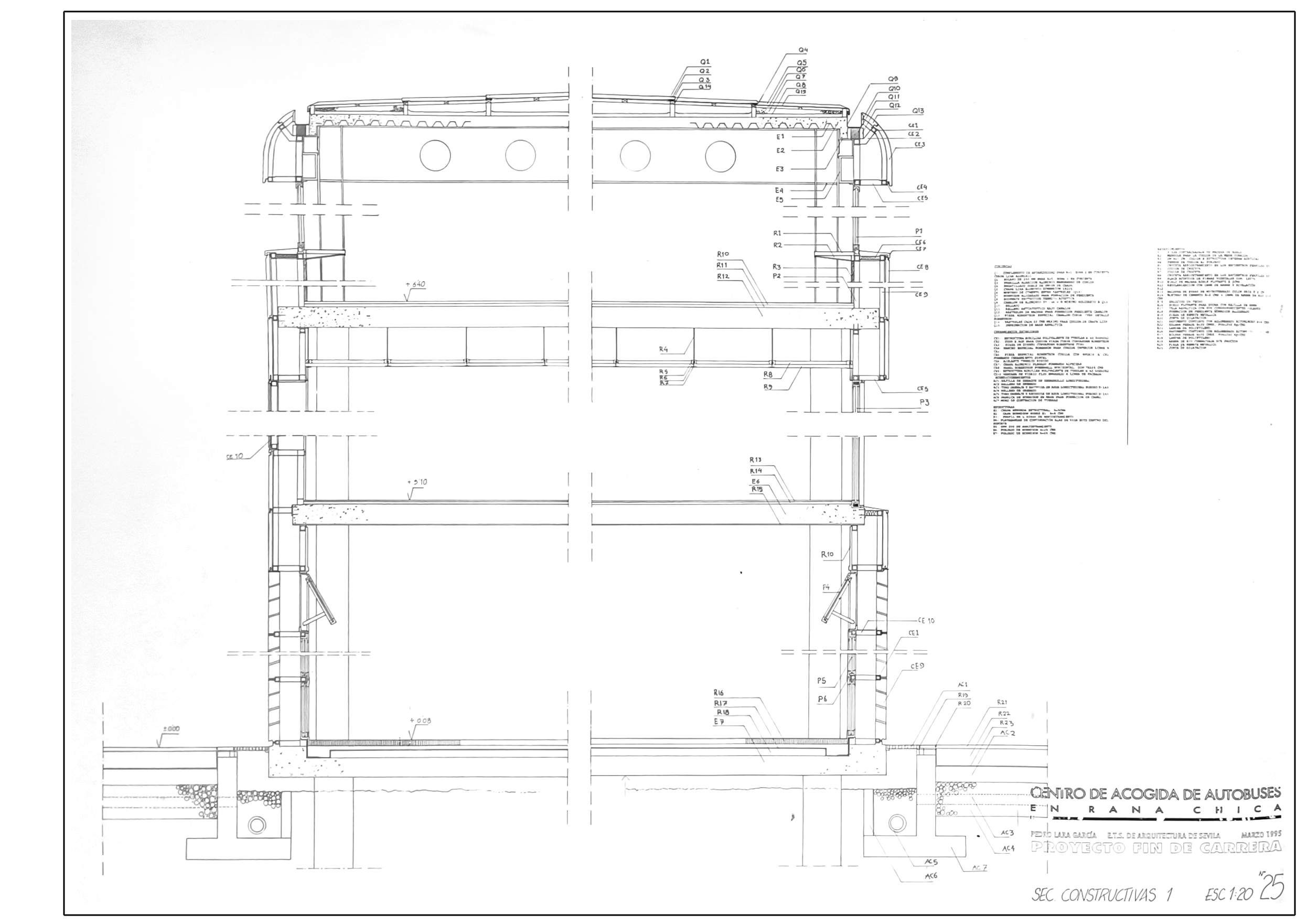
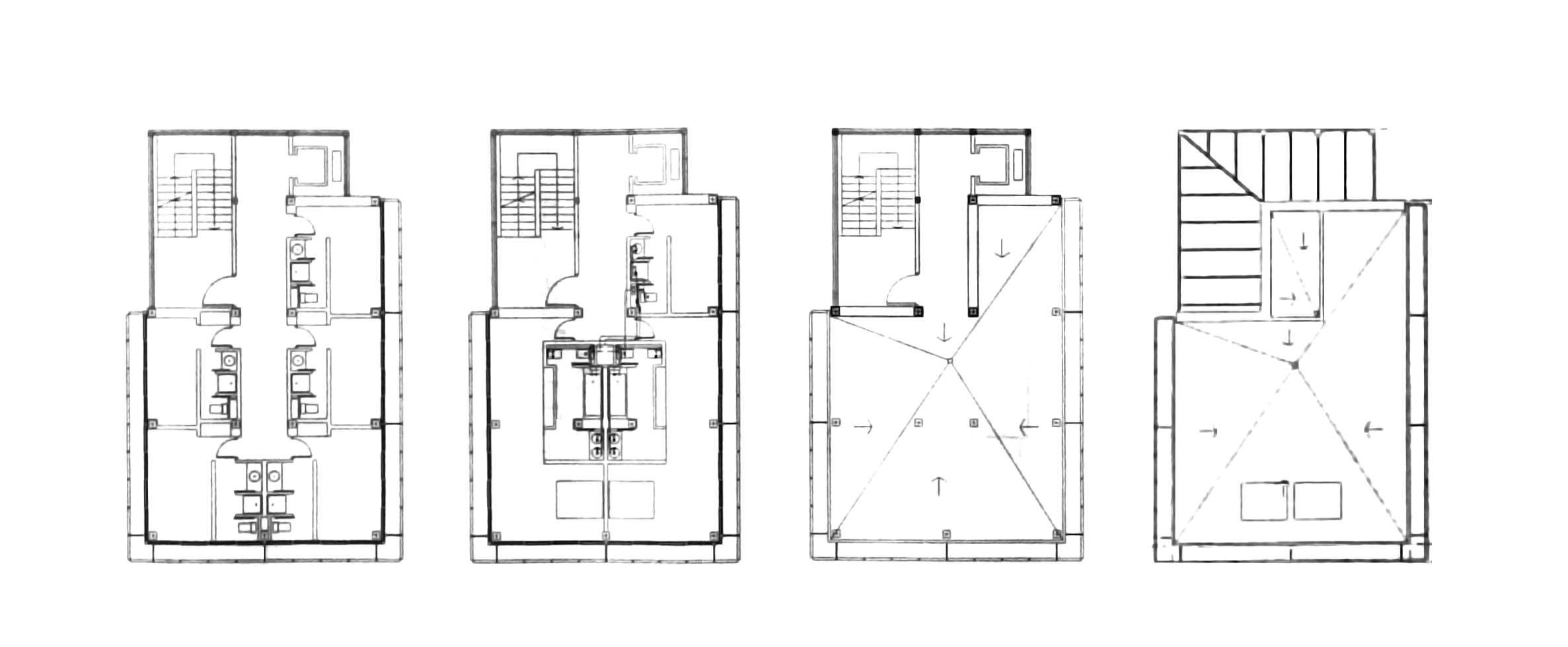
El programa comprende un extenso aparcamiento para buses y turismos, talleres de reparaciones, un hotel e instalaciones sociales y recreativas para los conductores.

La propuesta abraza la idiosincracia, y celebra la estética, de los materiales y las formas del mundo del transporte por carretera para ofrecer un espectáculo períférico y radical de asfalto, metal y luces que se expone orgulloso y cinético a la ciudad a través de la circunvalación S-30 que rodea el solar por el lado Sur, proporcionando tanto a los ciudadanos como a los conductores alojados en él una visión desprejuiciada y cinematografica del mundo de la carretera tan celebrado tanto en ciertos círculos de aficionados al motor como en numerosas películas.

Especificaciones

Area del lugar

edificado : 6.400 m2
total: 27.000 m2

Fecha

1993

Estado del Proyecto

Proyecto Fin de Carrera

Herramientas

Autocad, Blender 3d, Photoshop, IA

P

Es un poco como cuando vas por la autopista y hay mofetas por los alrededores. La primera vez, subes la ventanilla y das un chasquido de contrariedad por el mal olor, pero es interesante: un gran incidente oloroso allí, en medio de ninguna parte. La vez siguiente dejas las ventanillas abiertas, y la otra ya has asomado la cabeza por la ventana inspirando profundamente. Creo que esto es esencialmente lo que está sucediendo con este nuevo estilo de ficción

Frederick Barthelme