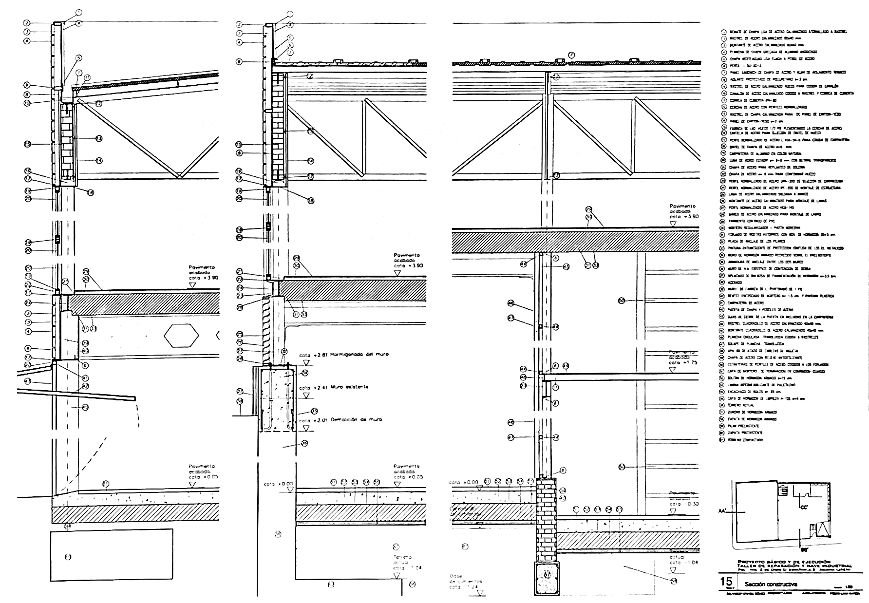
Concesionario de Automoviles y Taller de Reparacion

Ampliación de un Taller de reparación existente duplicando su superficie en el solar adyacente, además de la creación de un Concesionario de Automoviles en planta alta.

Specifications

Area del lugar

350 m2

fecha de construcción

1999

Estado del Proyecto

Construído