Concurso sede EMT Madrid

Concurso para la sede del Museo de la Empresa Municipal de TRansportes de Madrid. Una situación privilegiada junto a un nuevo parque a orillas del Manzanares para mostrar la colección de vehículos históricos de la Empresa y la historia del transporte colectivo en la ciudad de Madrid

Detalles

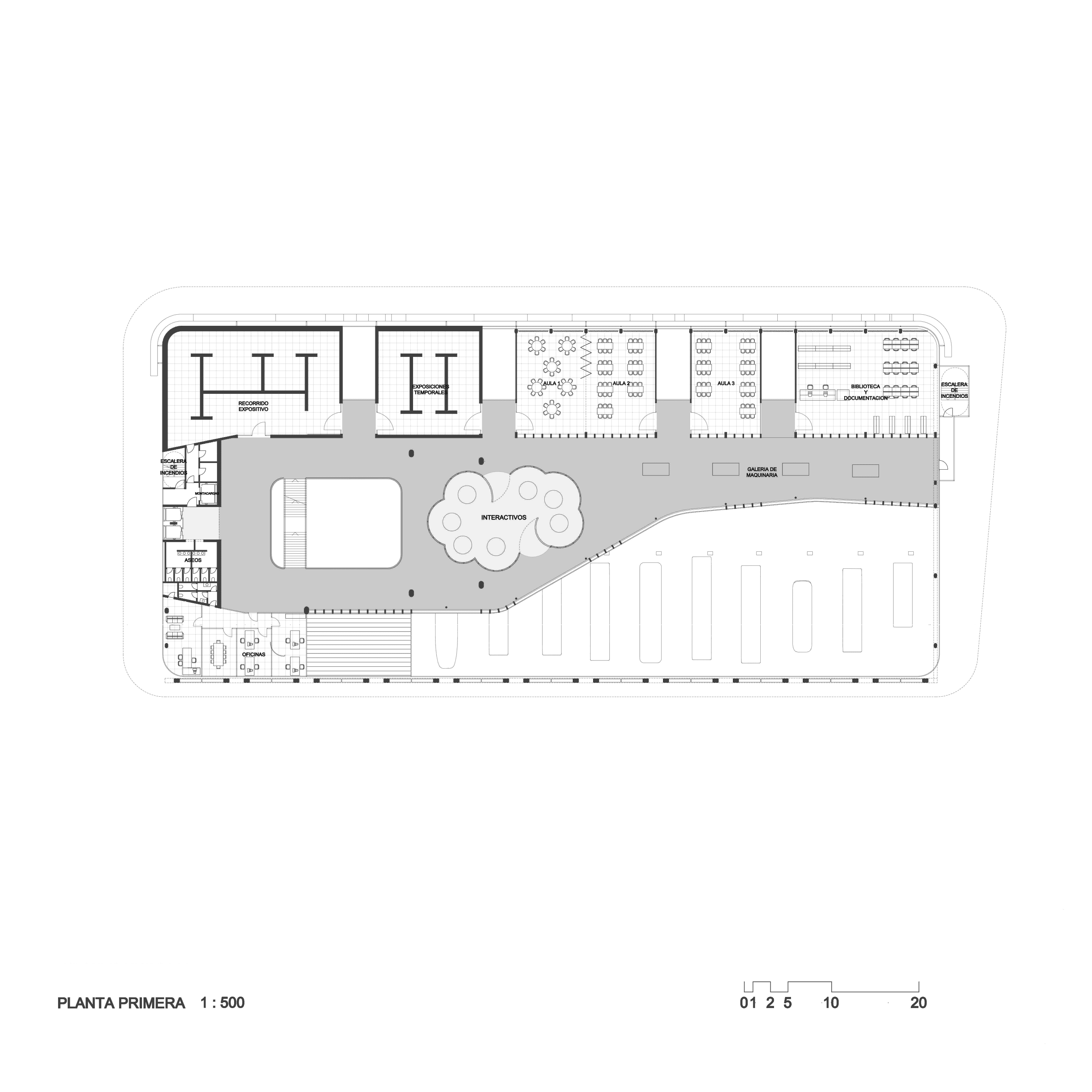
Un gran contenedor transparente de 100*70 m abierto a la Avenida adyacente, bajo una cubierta única inclinada donde los vehículos tienen el protagonismo absoluto y el resto de usos se agrupan en torno al espacio expositivo.
Propuesta realizada en solitario, desde el concepto inicial hasta la presentación.

Especificaciones

Area del lugar

7000 m2

fecha

2025

Estado del Proyecto

Propuesta de Concurso

Herramientas

Progecad, Blender 3D, Photoshop, IA

Planos