Hogar para Indigentes

Detalles

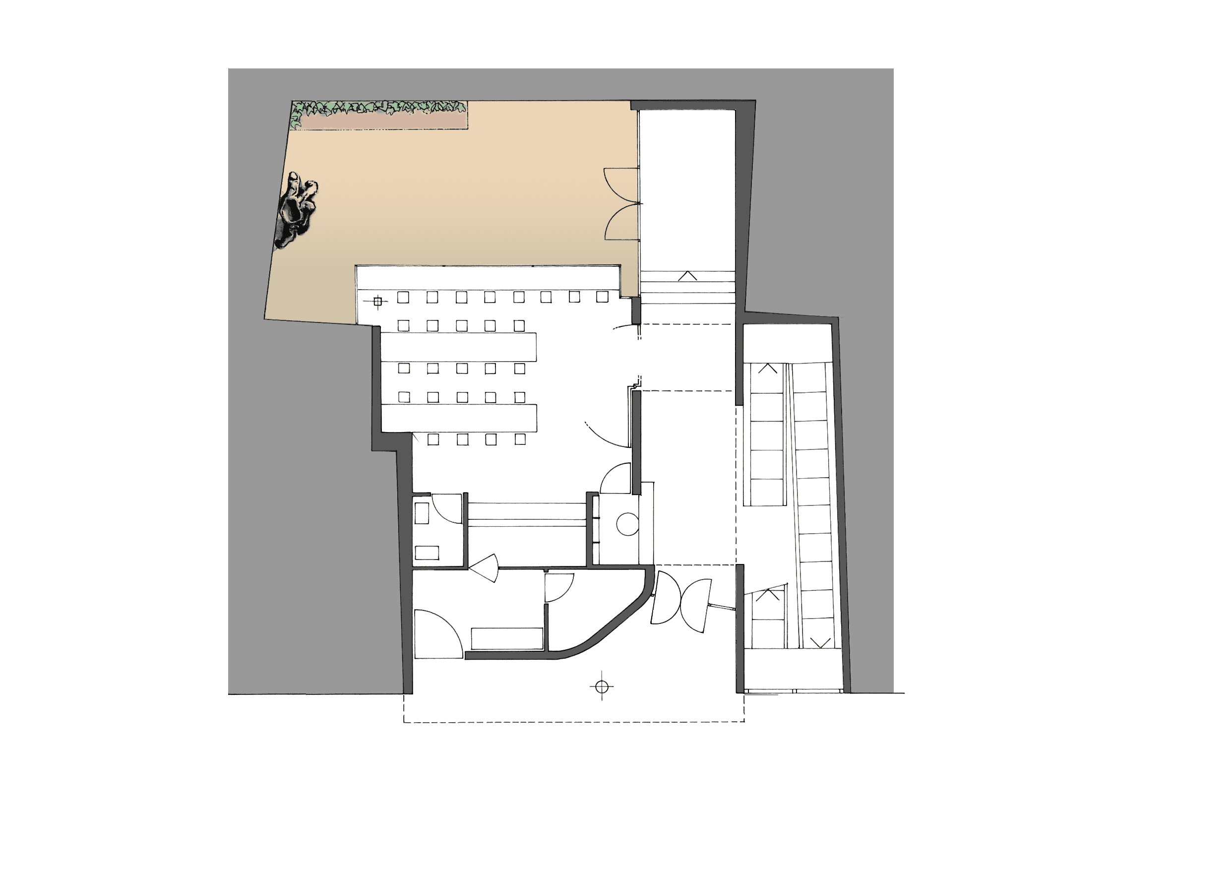
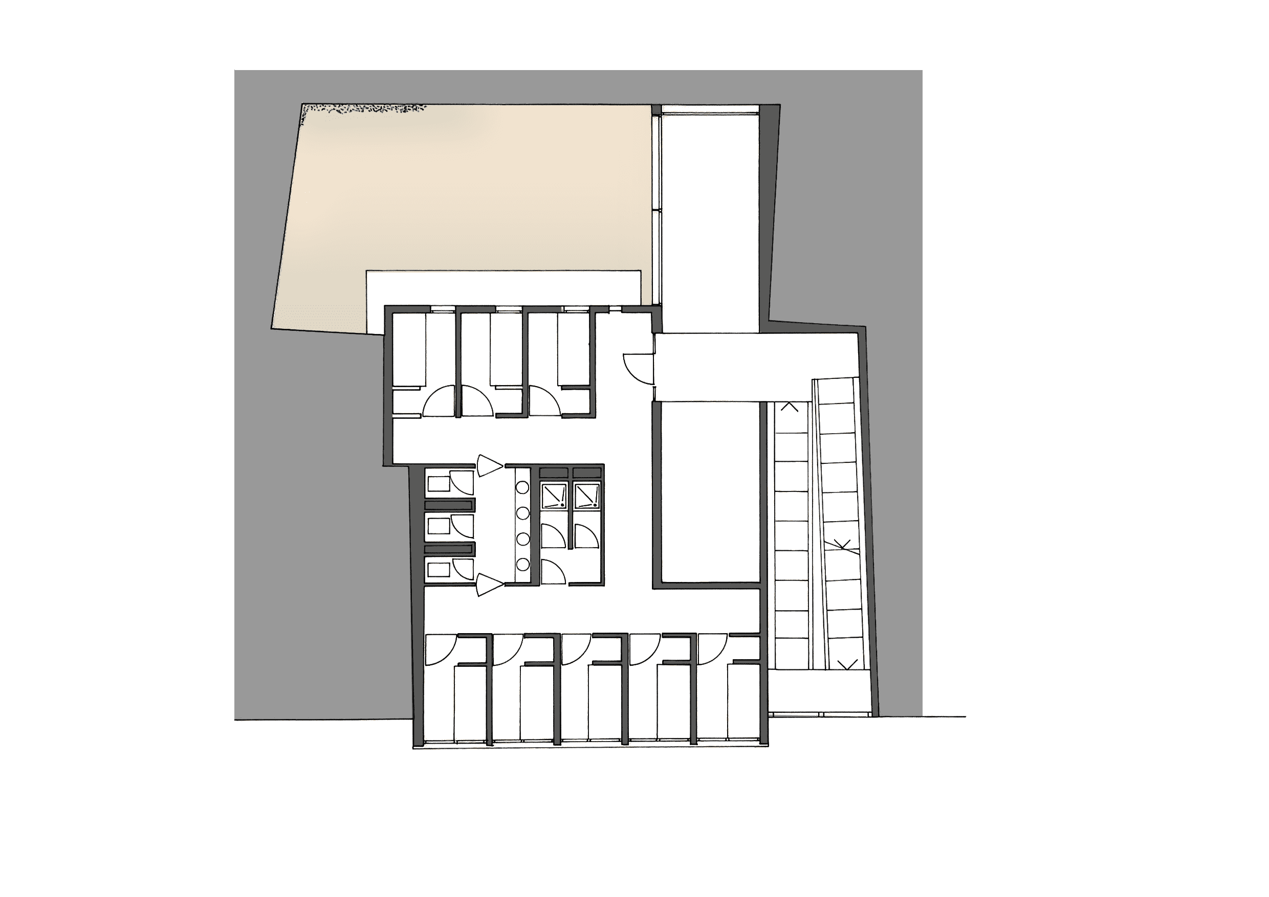
Proyecto académico para la construcción de un edificio de acogida nocturna de indigentes

Especificaciones

Area del lugar

700 m2

fecha

1991

Estado del Proyecto

Anteproyecto

Tools used

Blender 3d, Photoshop