Vivienda Unifamiliar

fachada ( recreación)

Detalles

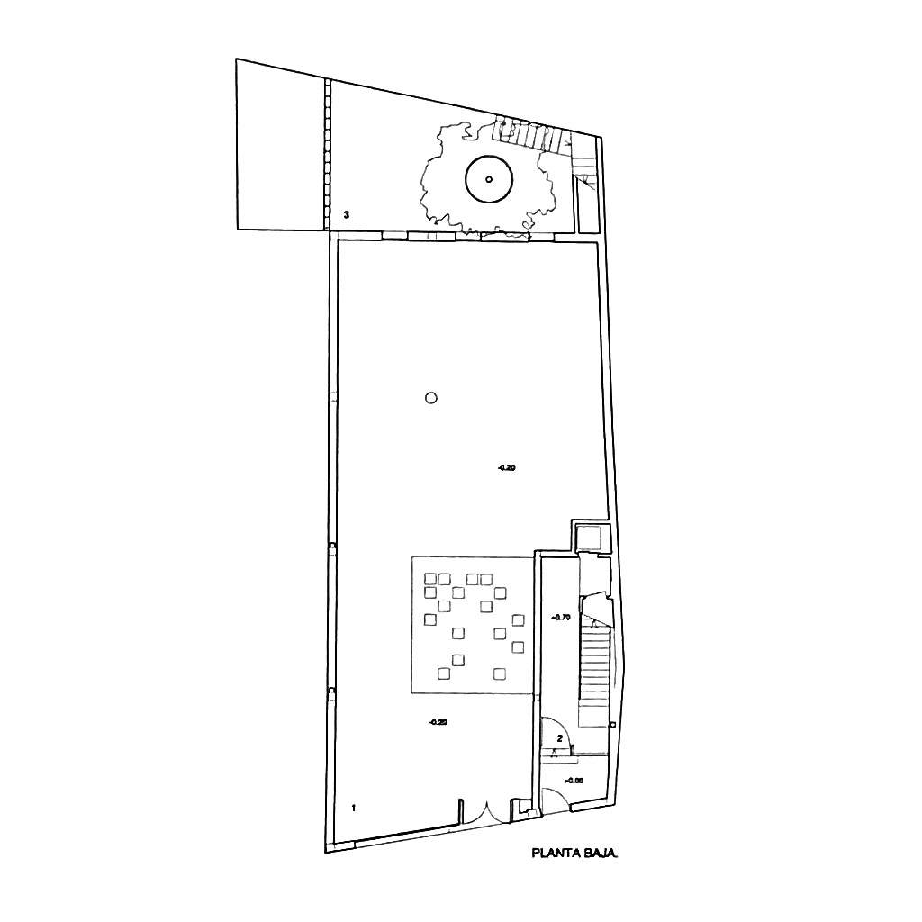
Vivienda para una familia en el casco histórico del municipio de Salteras (Sevilla).
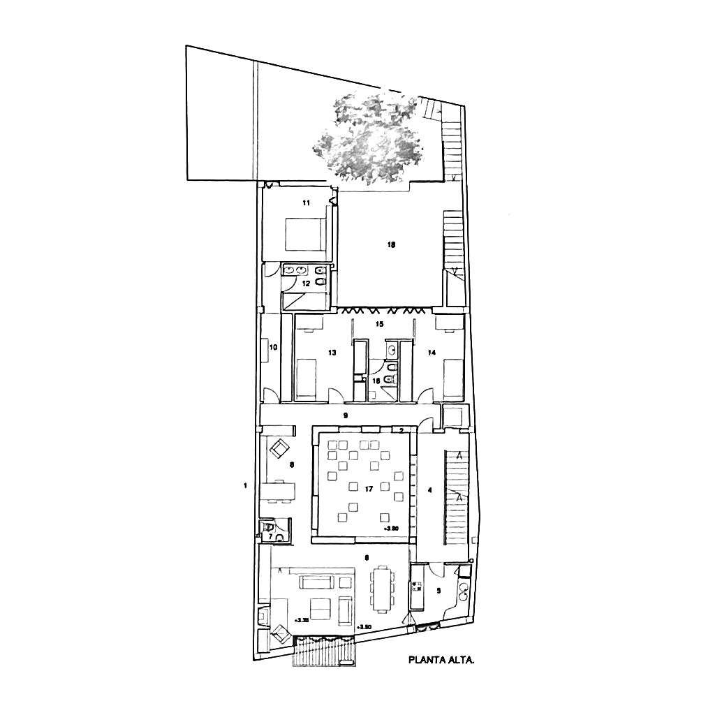
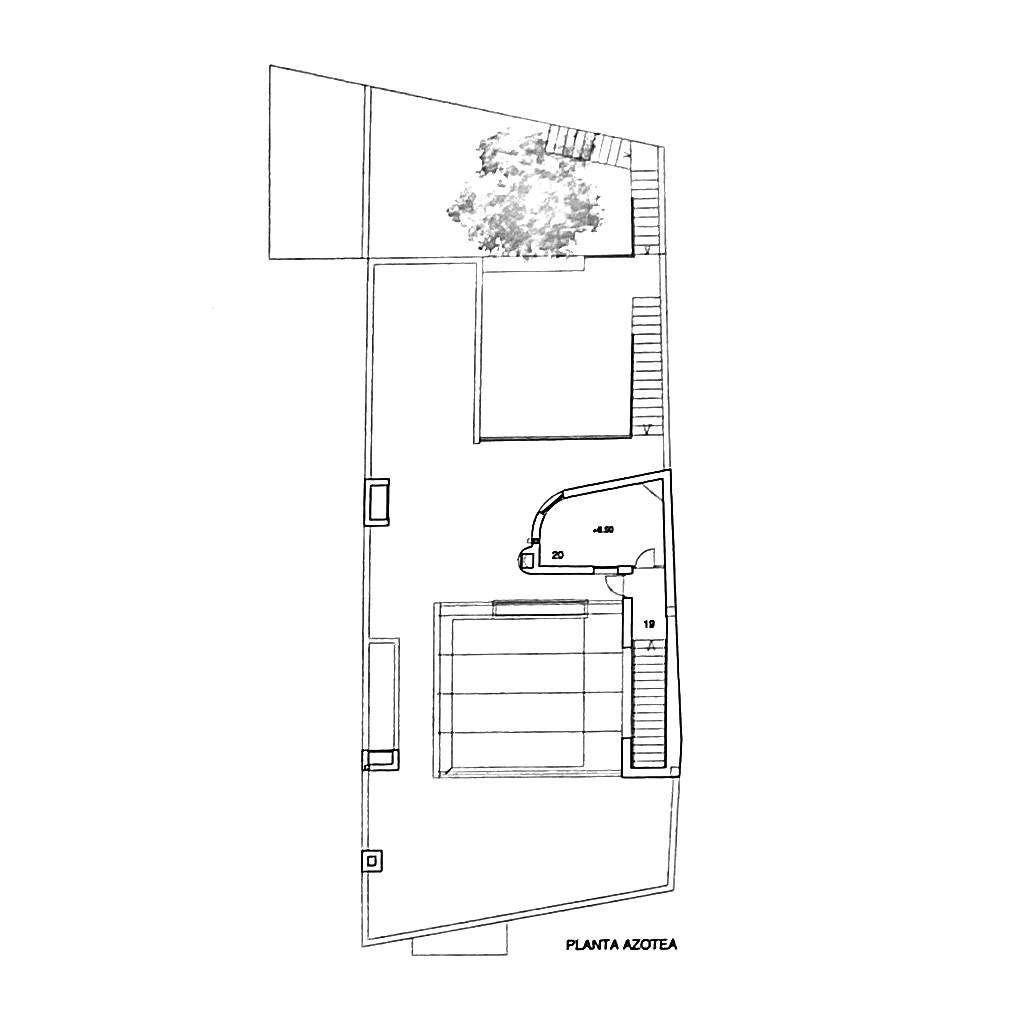
La gran profundidad del solar propicia la aparición de un patio que centraliza las actividades diurnas, mientras que los dormitorios se orientan hacia una generosa terraza trasera. La extensa cubierta plana, se convierte en extensión de la casa, animada por lucernarios, planteles, y formas varias.
El local de planta baja, con una mínima interrupción de pilares, se ilumina también con un amplio lucernario de paves desde el patio superior.

Especificaciones

Area del lugar

250 m2

Fecha

2000

Estado del proyecto

Construído