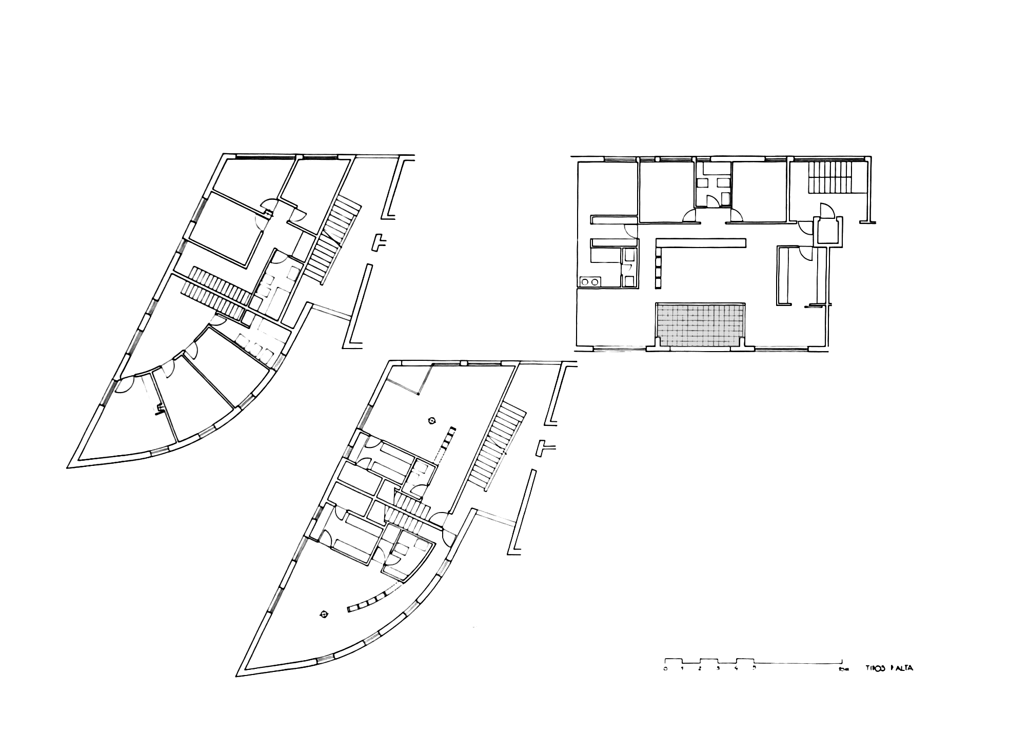
Viviendas Tiro de Linea

Bloque residencial inserto en una ordenación general de la zona.
La tipología evoca los "lofts" neoyorquinos y la atmósfera de neones de la Gran Manzana como una pieza exenta e icónica

Especificaciones

Area del lugar

5000 m2

fecha

1990

Estado del proyecto

Anteproyecto

Herramientas

Photoshop, Blender 3D